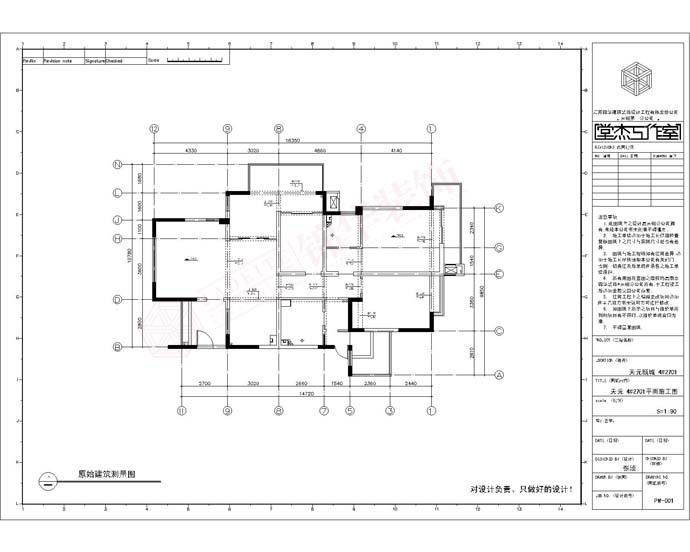
原始结构图

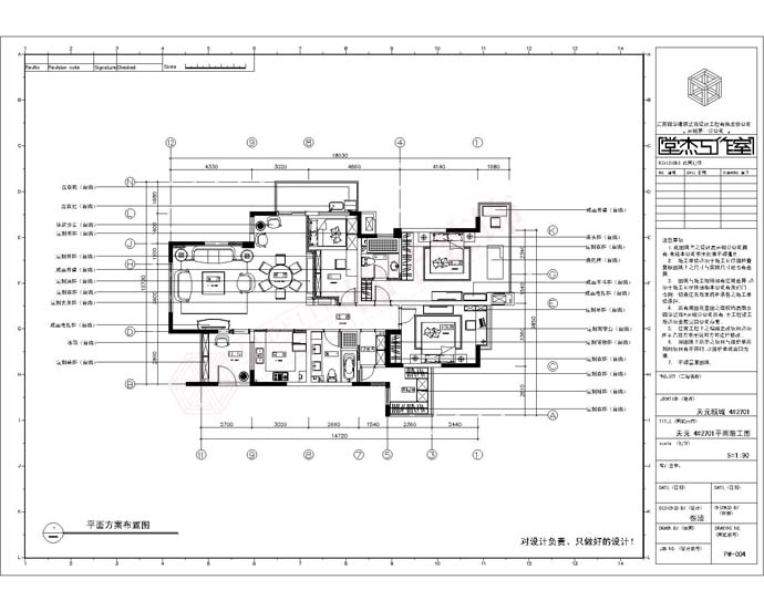
平面布置图

参考效果图


江苏家装示范品牌
代表地区优秀设计声音
集28年工程管理经验之大成
省时、省力更省心
| 走进锦华 | 设计团队 | 作品列表 | 户型解析 | 装修百科 |
关注锦华公众号
|
浏览手机官网 |
全国热线 15250817358 |
||||||||||
| 新闻列表 | 锦华文化 | 堂杰国际设计 | 全案设计中心 | 极简 | 中古 | 祥新·唐源里 | 常见问题 | ||||||||||
| 全国分公司 | 锦华招聘 | 法式 | |||||||||||||||
| 锦华简介 | 联系我们 | 欧式古典 | 北欧 | 海伦堡·东尚府 | |||||||||||||
| 资质荣誉 | 法律声明 | 美式田园 | 新古典 | 滨江·湖畔春晓 | |||||||||||||